Playing kabaddi players have applicable to job for any government jobes like Indian railways, Bharat petroleum limited and other . They player have vaccancy to applicable job .There company have got jobs for Skill player like Amir Dhumal ( Raigad , pezari) is played for Railways . Have job for kabaddi players but theys have multiple Tallent them to select the companies.
Benefits of kabbadi players :-
1. Endurance (from breath-holding and moving)
2. Running
3. Dodging
4. Kicking
5. Defensive skills
6. Never to be underestimated
The Rules of Kabaddi
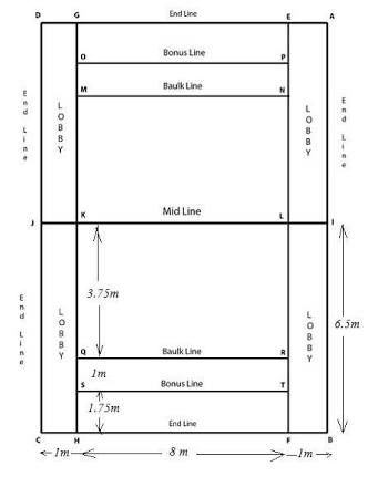
Kabaddi Game Ground
The kabaddi game is the physically and mentally game. There is measured of ground there

The kabaddi game has total 13×10 measurements. The inside there 2 teams are playing. Midline to Baulk line measure is 3.75 m . Bonus line is 1 m . And End line is 1.75 m long .Tere Is the 2 lobby one lobby has 1 m long and 6.5 m long
kabaddi journey

The basic rules of kabaddi were formalized in India in the early 20th century and published in 1923. The game received international exposure when Amravati-based sports organization demonstrated it, at the 1936 Olympic Games, in Berlin. It was then included as an event in the Indian Olympic Games held in Calcutta (now Kolkata) two years later. India was also instrumental in getting Kabaddi included in the main disciplines of the XI Asian Games held at Beijing, China in 1990. Kabaddi got recognized the national game of Bangladesh 1972. It is the state game of 7 Indian states. The sport is recognized in five forms in India, namely, Suranjeevii, Gaminee, Amar, Circle, Goongi. The first two being internationally accredited.